
El antiguo Théâtre des Variétés, construido en la década de 1930, había llegado a ser una de las salas de espectáculo más modernas de Bruselas durante la época dorada de la cultura del entretenimiento de la ciudad. Fue ideado como teatro y music-hall por el arquitecto modernista local Victor Bourgeois, después pasó a convertirse en un gran Cinerama durante los 60s, hasta quedar finalmente abandonado y en un estado prácticamente de ruina en los 80s.

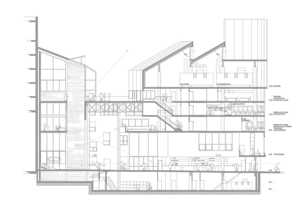
Ahora el nuevo propietario del edificio, Bruxelles Laïque, quiere darle una nueva vida al teatro que se ajuste a su agenda social innovadora y ambiciosa. El programa incluirá dos teatros, oficinas, camerinos, una cafetería/restaurante y un gran foro abierto.

El proyecto abre un nuevo capítulo en la historia de este lugar, prestando especial atención a sus futuros usuarios y vecinos, y a las cualidades históricas del edificio.


El punto de partida para este nuevo edificio se encuentra contenido en el teatro existente: en las grandes alturas y generosas dimensiones de sus espacios, de una escala similar a la de una gran plaza urbana.

Estas características coinciden con las requeridas para la nueva ocupación: un espacio público abierto e inclusivo para acoger debates, representaciones musicales y artísticas y para celebrar encuentros sociales. El proyecto propone una reactivación del lugar para su nuevo uso al tiempo que conserva sus cualidades espaciales y materiales únicas, trabajando con memoria del edificio pero sin nostalgia.