Obras

Reutilización material como gesto de innovación austera

Reutilización material como gesto de innovación austera

Nombre de proyecto

  • Reutilización material como gesto de innovación austera

País

Año

Superficie

  • 280 m²

Fotógrafo

Las oficinas de Agrosemillas se implantan en un entorno agroindustrial concebido a la escala de grandes vehículos, infraestructuras logísticas y procesos productivos, más que a la escala de las personas. El complejo se sitúa junto a una carretera nacional que lo separa del núcleo urbano de El Peral (España) —un municipio de 660 habitantes— y se rodea de extensos campos de cultivo sin referencias próximas. El carácter del lugar viene definido tanto por esta condición territorial como por un clima de fuertes contrastes estacionales y episodios recurrentes de lluvias torrenciales. La actividad se organiza en torno a los ciclos de la cosecha, alternando periodos de baja intensidad con fases de trabajo continuo.

El proyecto responde a la necesidad de introducir espacios de trabajo capaces de ofrecer condiciones adecuadas de concentración, reunión y desarrollo técnico dentro de un contexto dominado por el ruido, el polvo y la intensidad logística. Los usuarios —desde personal de almacén hasta ingenieros vinculados a la innovación— adaptan sus tareas y ritmos a las distintas épocas del año, lo que exige un edificio capaz de acoger usos diversos sin perder claridad organizativa. Al mismo tiempo, las oficinas debían mantener una relación directa con la actividad de las naves circundantes, buscando cierta continuidad formal con el conjunto industrial.

La nueva construcción se plantea como una oportunidad estratégica para acompañar la transformación de la empresa. Agrosemillas, con una larga trayectoria ligada a la producción de semillas, inicia una etapa orientada hacia la innovación tecnológica y la sostenibilidad. La arquitectura asume la responsabilidad de expresar este momento de cambio, articulando una continuidad con el legado existente e introduciendo, a la vez, una actitud más abierta, joven y desenfadada. Esta posición se materializa en el uso directo de los colores corporativos —verde y amarillo—, aplicados sin intermediaciones. Las fachadas se resuelven mediante un número limitado de grandes aperturas circulares, protegidas por contraventanas también circulares de accionamiento manual, concebidas casi como un switch que conecta o desconecta el edificio de su entorno.

Las oficinas se construyen simultáneamente a más de 4.500 m² de naves productivas y de almacenamiento, compartiendo sistemas, materiales y oficios. El proyecto se apoya en la mano de obra disponible en el entorno inmediato: los oficios del pueblo —como el herrero o el fontanero— y los encofradores del municipio vecino, junto con los equipos habituales de la construcción industrial de la zona. Esta condición resulta determinante para adoptar decisiones ajustadas a los medios reales del lugar y refuerza una arquitectura deliberadamente austera.

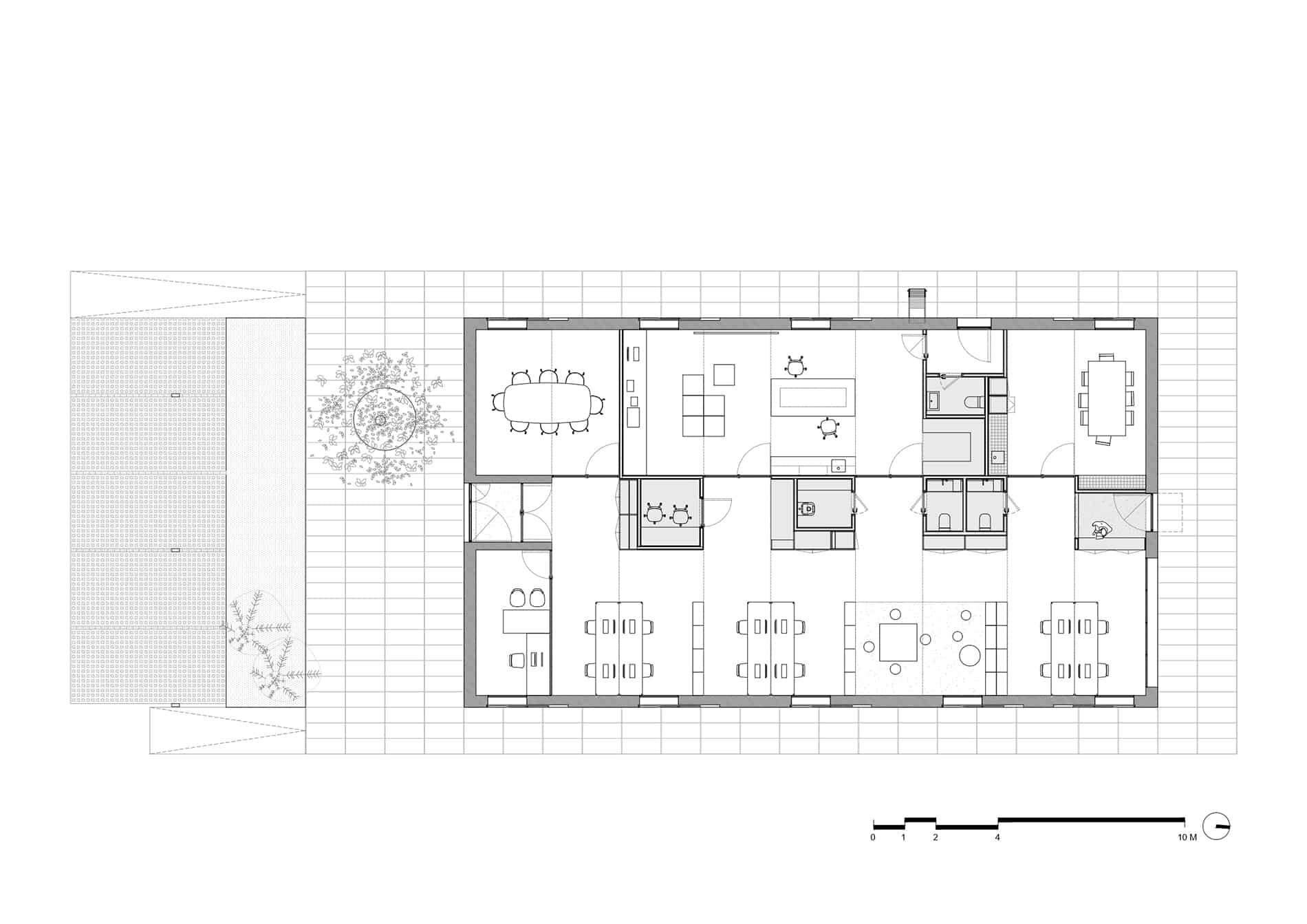
La organización espacial se resuelve a partir de un sistema claro y repetible. Cuatro contenedores marítimos reutilizados, abiertos en dos de sus caras, se apoyan sobre un zócalo de hormigón común a las naves industriales. Su disposición genera una cubierta dentada que actúa como una secuencia de lucernarios, proporcionando una iluminación natural homogénea y una notable riqueza espacial en el interior. La orientación al norte de los planos abiertos permite una entrada de luz constante y controlada.

En sentido perpendicular, y a modo de retícula, tres bandas estructuran la planta: una destinada al trabajo abierto, otra a los espacios servidores y una tercera a salas de reunión y laboratorio. Los accesos se segregan según los flujos logísticos y laborales, mientras que las cubiertas intermedias incorporan franjas de cultivo experimental, integrando investigación, producción y arquitectura en una misma operación.

El edificio se concibe así como una infraestructura de trabajo precisa y contenida, donde la arquitectura se construye a partir del sistema, del uso y de las personas que la hacen posible.

PRODUCTOS RELACIONADOS