

La Casa Sacná es un proyecto uniforme donde se mimetizan sutilmente la cultura y la arquitectura. Su nombre significa casa blanca formado por los vocablos mayas: Sac/Blanco y Ná/ Casa.


El diseño contempla en su idea inicial las orientaciones en términos de asoleamiento y ventilación. La construcción se posiciona al sureste y noreste para captar los vientos, mientras que en los puntos sur se aprovecharán del asoleamiento.

La vivienda está construida en las afueras de la ciudad de Mérida, Yucatán. El terreno de forma plana trapezoidal es de 2,400 m². La construcción responde directamente a dos factores principales, un campo de golf y sus habitantes, siendo diseñada para una familia joven con la intención de habitar la casa por muchos años.

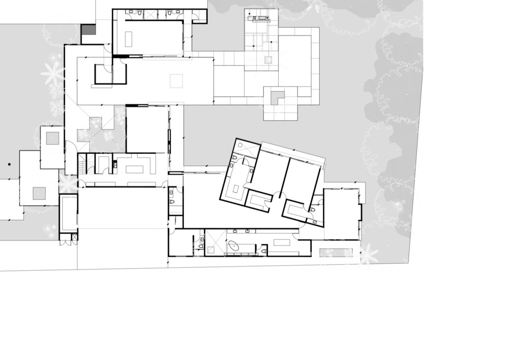
Se crea un espacio exterior privado que se orienta hacia el campo de golf. En algunas recámaras se presenta un giro en la geometría ortogonal del proyecto que sugiere privacidad y enfatiza las visuales.

Sac-Ná es una vivienda de una planta, donde la geometría es una prioridad, un proyecto donde se tuvo como principal objetivo la función y el programa que la familia requirió.

