Obras

Casa del Este | Muros de tierra compactada dialogan con la costa

Casa del Este | Muros de tierra compactada dialogan con la costa

Nombre de proyecto

  • Casa del Este | Muros de tierra compactada dialogan con la costa

Oficina

País

Año

Superficie

  • 798.44 m²

Fotógrafo

Casa del Este es un proyecto residencial de JVL Architects para una familia de cuatro integrantes, con capacidad para hospedar hasta 12 personas. Concebida para integrarse en el paisaje privilegiado de Cabo del Este en Baja California Sur, México, la casa es un refugio cómodo y seguro dentro de una zona desconectada de la red urbana y alejada del bullicio de San José del Cabo. Para sus propietarios, representa un escape ideal de las drásticas temperaturas de su hogar en Alaska, un espacio de desconexión.

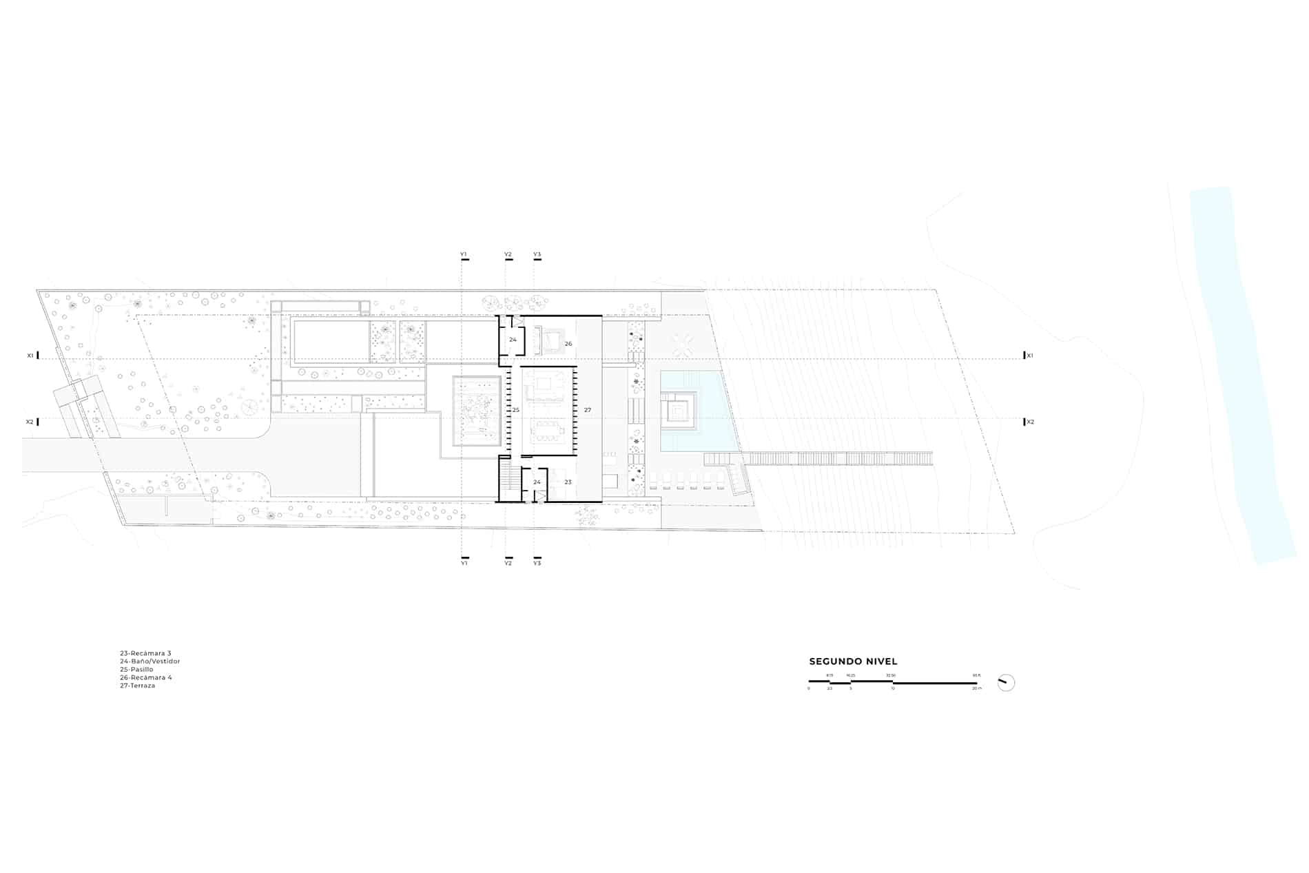
El diseño arquitectónico surge del diálogo directo con los clientes, quienes buscaban que el programa contara con tres recámaras con baño propio conectadas al área social, una ‘casita’ independiente para visitas, alberca, jacuzzi, acceso directo a la playa, firepit, una terraza sombreada, asador con bar exterior y cochera para tres autos. Un requisito esencial era garantizar espacios seguros para sus hijas pequeñas, mientras se protegía la casa de los vientos predominantes sin sacrificar las vistas al mar.

El acceso a la casa está marcado por un muro ciego que resguarda la privacidad, dejando visibles únicamente los accesos peatonal y vehicular. Desde ahí, los muros de tierra compactada del volumen principal de la casa guían al visitante hacia la entrada principal, creando una transición gradual hasta llegar a un muro de ladrillo que enmarca una puerta monumental de roble. Esta secuencia culmina en un patio central, elemento clave del proyecto. Inspirado en la arquitectura mexicana tradicional, este patio es el corazón de la casa y articula la conexión entre espacios sociales y privados.

Una pérgola perimetral de concreto permite la entrada de luz natural y aire fresco. Este espacio se diseñó para permitir que las condiciones climáticas se filtraran al hogar de manera controlada, prescindiendo de cubiertas de cristal que se afectaran durante la temporada de huracanes. Al centro, una apertura rectangular permite que un árbol torote se levante, convirtiéndose en punto focal rodeado de vegetación endémica y un piso de barro que refuerza el carácter regional.

Desde las primeras etapas del proyecto, la compactación del suelo y la solución estructural fueron temas críticos para JVL Architects, tanto por su impacto en los costos como por la viabilidad de la propuesta arquitectónica. El terreno, al ser virgen y compuesto mayormente de arena, presentó un desafío adicional ya que no es un material compactable. Esto exigió un trabajo especializado de ingeniería de suelos que consistió en traer tierra de banco para mezclarla in situ y lograr el nivel de compactación requerido para la cimentación. Esta arena del sitio —que inicialmente complicaba el proceso— se convirtió en materia prima esencial para la construcción de los muros de tierra compactada característicos del proyecto, cerrando un ciclo virtuoso de aprovechamiento y diálogo con el contexto.

Casa del Este permite una experiencia donde el paisaje dicta el ritmo de vida. Desde el despertar con la vista al mar y las ballenas saltando en invierno, hasta las tardes en la terraza y las noches bajo el cielo estrellado, cada momento está atravesado por la conexión con la naturaleza y el entorno.

PRODUCTOS RELACIONADOS