Arquine celebra el Día del Libro y la Rosa invitándote a descubrir su catálogo editorial. Accede a descuentos exclusivos en nuestra tienda en línea hasta el 30 de abril.

Obras

Una aldea urbana de acceso público

Una aldea urbana de acceso público

Nombre de proyecto

  • Una aldea urbana de acceso público

Ciudad

Año

Superficie

  • 20,300 m2

La finalización de Republica en Amsterdam-Noord marca un nuevo capítulo en la transformación de Buiksloterham, de un parque industrial a una vibrante comunidad de trabajo y vivienda.  ¿Cómo se ve una forma sostenible de vida colectiva en la ciudad densa del futuro? Esa fue la pregunta que dio origen a Republica, uno de los proyectos pioneros en el antiguo distrito industrial de Buiksloterham, en el norte de Ámsterdam, actualmente en proceso de transformación hacia un nuevo fragmento de ciudad circular. La respuesta es una “aldea urbana” funcionalmente mixta y conectada, con una densidad edificatoria y una calidad notable tanto en la vivienda como en el espacio público.

La arquitectura tipo loft, con grandes ventanas, techos altos, amplios claros estructurales y materiales robustos, remite al lenguaje industrial de los puertos de Ámsterdam, mientras que la plaza de piedra natural y las grandes escaleras aportan un carácter alegre, casi del sur de Europa. El edificio del restaurante cuenta con una fachada monumental de ladrillo y se retranquea ligeramente de la línea de edificación; el espacio resultante, orientado al sur, se equipa con amplios escalones para sentarse: las “escaleras españolas” de Buiksloterham.

Se abrió el antiguo predio industrial cerrado de 80 x 80 metros hacia su entorno y lo reorganizamos cuidadosamente en un conjunto de seis edificios, plazas y callejones, conectados con el barrio mediante dos puentes y una escalera monumental. El conjunto incluye una mezcla dinámica de funciones: departamentos (en renta y venta, de entre 60 y 130 m²), incluida una torre con diez Superlofts; espacios comerciales y de oficinas; dos cafés-restaurantes; y un apartahotel para estancias medias y largas. En la azotea habrá un club de sauna con alberca y vistas al lago IJ.

La torre de concreto verde suave, con núcleos y envolventes adaptables para los Superlofts, permite a los residentes personalizar radicalmente sus interiores. Marca la “plaza central del pueblo”, pavimentada con piedra natural desmontable. El bloque residencial blanco está construido con concreto atemporal, especialmente perfilado y parcialmente reciclado. El edificio del apartahotel cuenta con una fachada de madera proveniente de fuentes renovables. El edificio de oficinas tipo almacén está hecho de acero corten reciclable y duradero y, gracias a su gran altura libre, también es apto para usos productivos. La fachada de ladrillo del café y espacio de coworking se realizó con ladrillos reciclados, manipulados en su textura superficial y colocados en distintos aparejos.

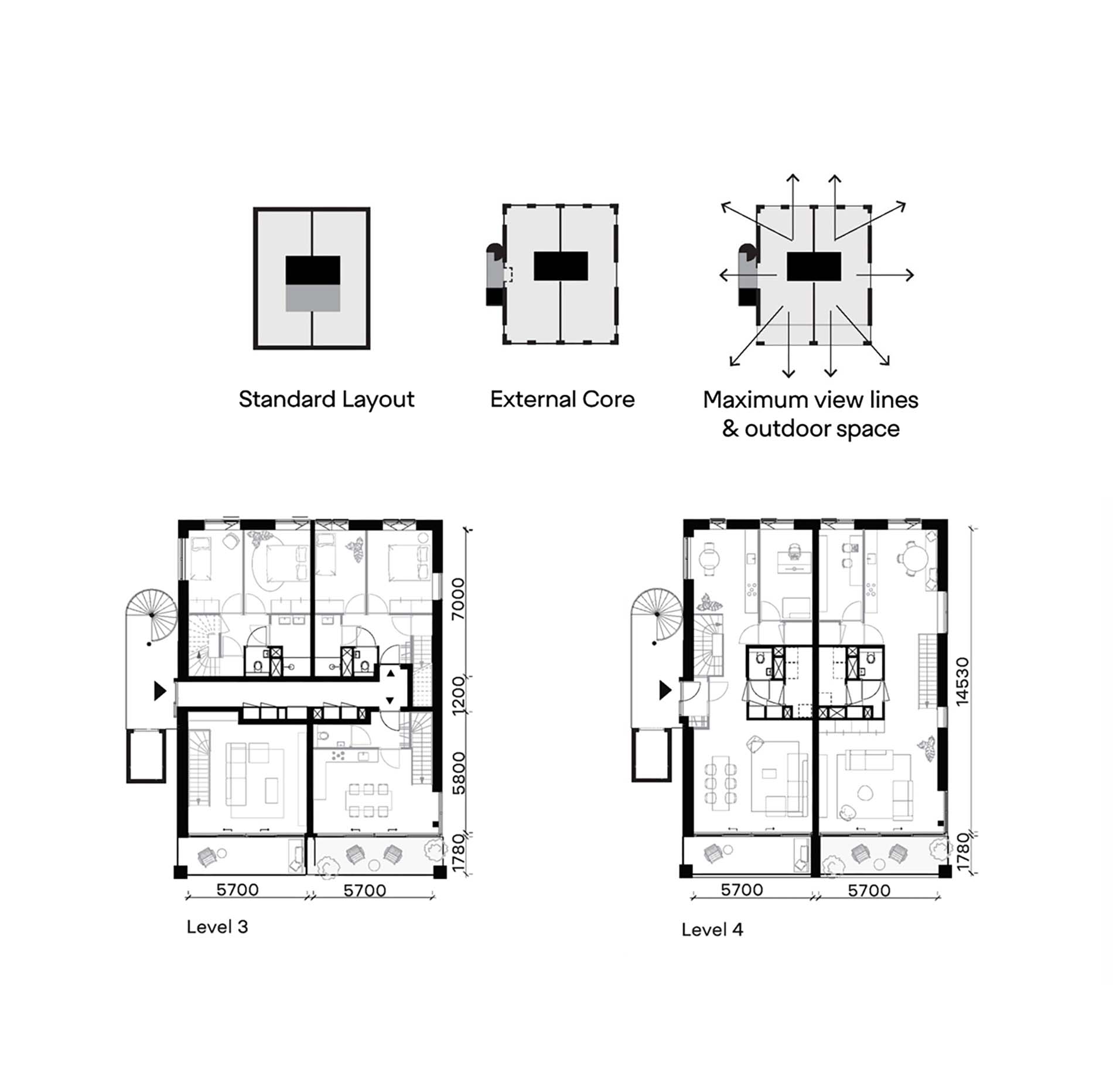
Cada edificio tiene así su propia historia, estructura, función, forma y acabado de fachada sostenible, lo que permite que puedan adaptarse de manera independiente en función, distribución y expresión. La mayoría de los edificios son flexiblemente divisibles gracias a la separación entre estructura y acabados, los grandes claros, techos altos, ventanas amplias y sistemas de materiales desmontables (lo que MKA (Marc Koehler Architects denomina Open Buildings y Open Systems). De este modo, “crecen” con el tiempo y duran más, lo que probablemente se traduzca en una reducción significativa de demoliciones y residuos de construcción en el futuro. La arquitectura circular y social, atemporal, que resulta de este enfoque —y que MKA (Marc Koehler Architects) promueve— se inspira en el llamado Open Building Concept, un movimiento fundado por el fallecido John Habraken en la década de 1960.

Como parte de Smart Cities Europe, Republica aspira a ser energéticamente positiva. Además de su concepto arquitectónico, ha implementado diversas medidas para garantizar un suministro energético sostenible. El sistema de calefacción y refrigeración se basa en ATES (almacenamiento térmico en acuíferos), que utiliza pozos geotérmicos para el almacenamiento de frío y calor. Asimismo, Republica opera y gestiona su propia red eléctrica inteligente. En este sistema, la producción local (energía solar), así como la oferta y la demanda, se intercambian entre los distintos usuarios antes de interactuar con la red nacional, fomentando así la producción y el consumo locales. Una batería de 1 MW y los cargadores para vehículos eléctricos forman parte integral de esta red inteligente.

Todos los cuartos técnicos, estacionamientos, bicicletas, instalaciones, bodegas, áreas de separación de residuos y logística del hotel se concentran en un estacionamiento semienterrado, lo que garantiza una adecuada entrada de luz natural. Esto permite que las fachadas orientadas al nivel elevado del suelo y a las calles circundantes permanezcan abiertas por todos sus lados, incrementando la vitalidad, la seguridad social y la habitabilidad del conjunto.

PRODUCTOS RELACIONADOS