Arquine celebra el Día del Libro y la Rosa invitándote a descubrir su catálogo editorial. Accede a descuentos exclusivos en nuestra tienda en línea hasta el 30 de abril.

Obras

Casa en Palmilla | Sombra, patio y horizonte en Los Cabos

Casa en Palmilla | Sombra, patio y horizonte en Los Cabos

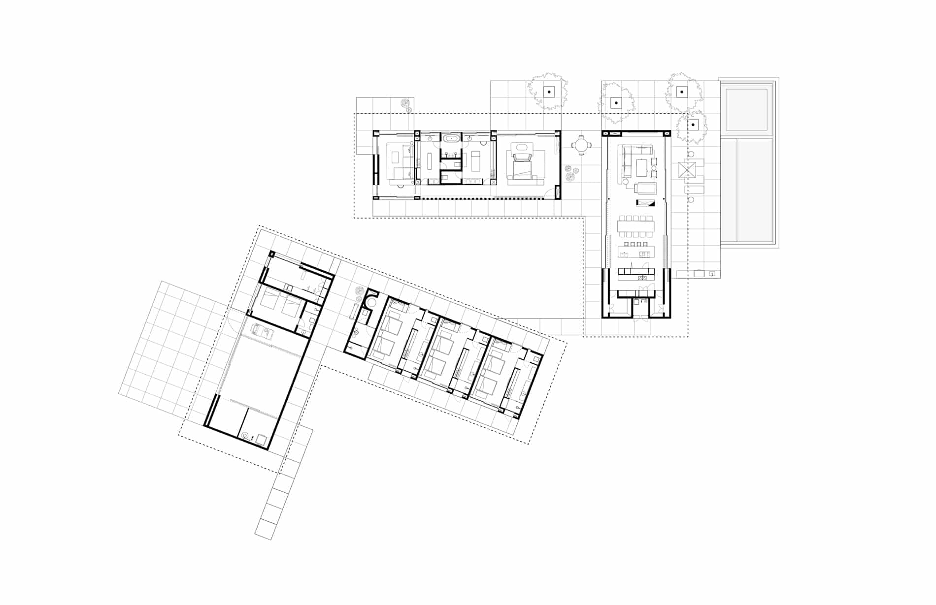
El proyecto se ubica en las colinas de Los Cabos y parte de una lectura atenta del clima y del contexto al que se integra. Un par de cubiertas ligeras —resueltas en madera y barro— organizan el conjunto. Sus volados perimetrales de 2.1 metros envuelven los distintos cuerpos y proyectan amplias sombras sobre muros y canceles, garantizando un desempeño térmico adecuado para la región.

La casa se organiza en cuatro cuerpos independientes dispuestos bajo estas dos cubiertas en “L”. Su acomodo no ortogonal da lugar a un patio central de geometría trapezoidal, un vacío que articula el conjunto. Este patio es casi ciego: de sus cuatro frentes, el más corto carece de construcción y se abre hacia las montañas del poniente; otro reúne los accesos a las recámaras secundarias; un tercero se construye mediante un ritmo de troneras de 20 × 20 centímetros que otorgan privacidad a la suite principal mientras tamizan una luz suave hacia su interior; el último frente corresponde al gran ventanal del área social, el único espacio que se abre directamente a este jardín de grava y centro de la vivienda.

Cada uno de los cuatro cuerpos alberga un programa distinto. El primero corresponde a los servicios: estacionamiento, bodegas, cuartos de máquinas, cuarto de servicio y lavandería. Bajo esa misma cubierta se ubica el segundo volumen que contiene el vanity y tres recámaras de huéspedes idénticas. En su interior, un volumen de madera —separado de la cubierta— delimita la habitación del baño-vestidor, generando una sensación de continuidad y amplitud espacial.

Bajo la segunda cubierta en “L” se desarrolla el tercer cuerpo, compuesto por la suite principal, dos vestidores independientes y un estudio que, según el uso de la casa, puede funcionar como family room o extender de manera privada la propia suite.

El conjunto remata con el cuarto volumen, que integra el corazón de la vivienda: la sala, el comedor y la cocina abierta. Dos ventanales de 12 metros de largo, ubicados en sus caras longitudinales, transforman este espacio en una terraza techada. Este gesto une el patio central con la terraza principal, la alberca y el horizonte del mar de San José.

La separación del conjunto en dos volúmenes principales permite que la casa se adapte a distintos modos de uso. Puede habitarse como una vivienda de una sola recámara y cuando es necesario, activar la segunda “L” para ampliar su capacidad. La disposición de cada pieza responde tanto a la relación entre programa y orientación como a la búsqueda constante de ventilación cruzada. La materialidad, en diálogo con las sombras proyectadas, asegura que la casa se mantenga fresca al tacto. Resuelta con una paleta contenida, se presenta como un monolito monocromático de concreto texturizado color arena, acompañado y suavizado por carpinterías y por una cubierta de encino laminado estructural.

PRODUCTOS RELACIONADOS