Obras

Cabaña en Vysočina | Un refugio oscuro bajo el tejado

Cabaña en Vysočina | Un refugio oscuro bajo el tejado

Nombre de proyecto

  • Cabaña en Vysočina | Un refugio oscuro bajo el tejado

Sitio web

Ciudad

País

Año

Superficie

  • 160 m²

El proyecto reutiliza una antigua granja situada en el paisaje ondulado de la región de Vysočina. Su construcción comenzó alrededor de 1820 y se completó hacia finales del siglo XIX. La casa rural se orienta hacia el acceso mediante un muro de piedra y portones de madera, mientras que la vivienda principal se sitúa en el borde del terreno con vistas al bosque. La familia propietaria adquirió el inmueble en 1993 e inició de forma gradual la restauración del exterior. En 2020 se renovó la planta baja y posteriormente el despacho Plus One Architects fue encargado de intervenir la planta alta.

El proyecto buscaba crear un ambiente acogedor para la familia y sus huéspedes, garantizando privacidad tanto en el interior como respecto al paisaje circundante. La propuesta mantiene vínculos con la planta inferior mediante el uso de materiales como madera maciza de abeto y el muro de piedra original expuesto, mientras que la planta alta adopta un carácter propio. Los tonos oscuros y los materiales en bruto —poco comunes en interiores rurales tradicionales— contribuyen a construir una atmósfera introspectiva. Combinados con una iluminación cuidadosamente diseñada, reducen estímulos visuales y favorecen la concentración y el descanso.

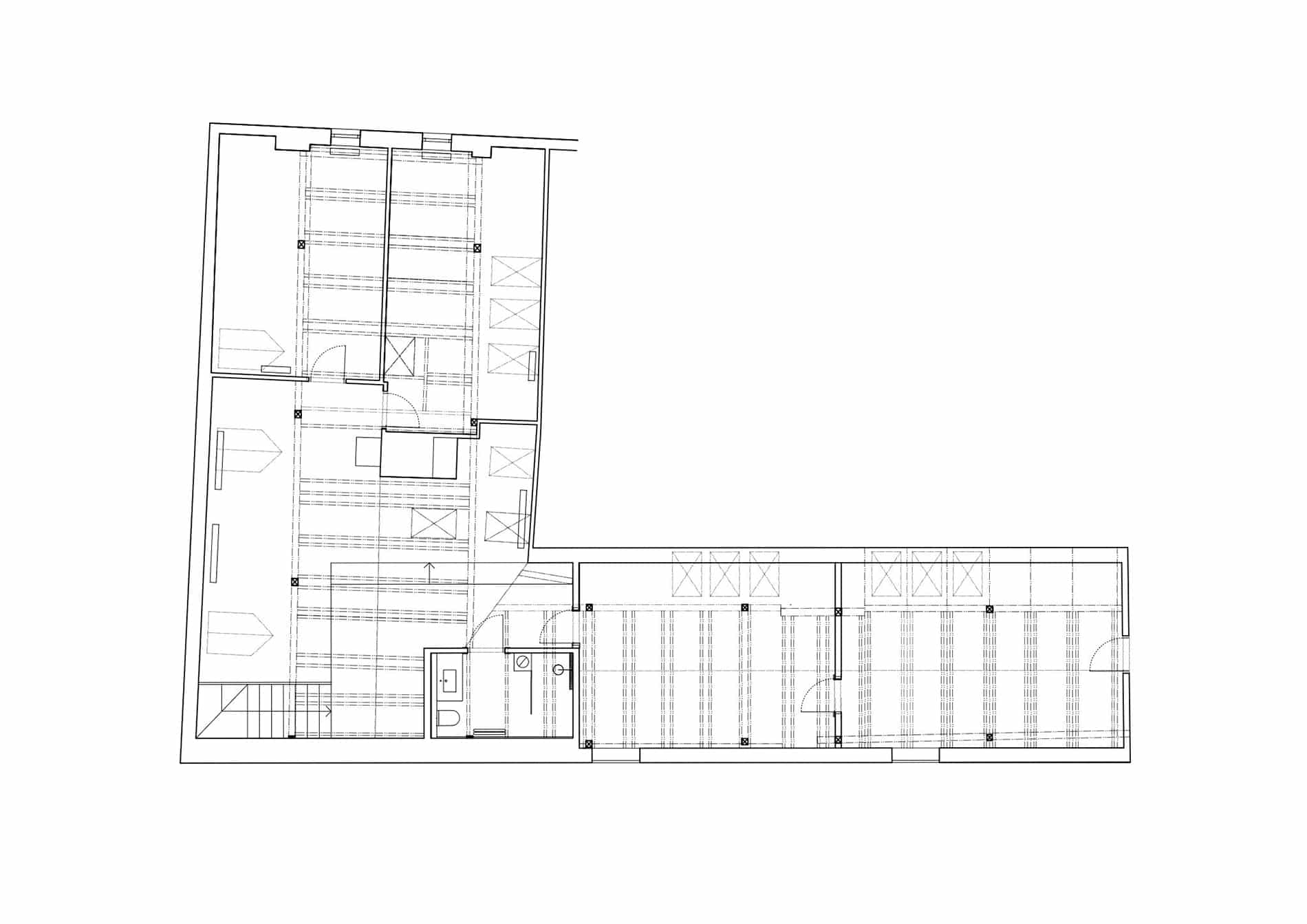
Las intervenciones incluyeron ajustes en la estructura de la cubierta para ampliar la superficie habitable. El nivel del piso se elevó mediante una subestructura de madera para unificar alturas, lo que implicó la construcción de una nueva escalera desde la planta inferior. Esta operación permitió insertar nuevas ventanas en los vanos originales del muro de piedra y conducir la luz natural hacia el interior. Desde el interior, las ventanas quedan parcialmente retraídas respecto al nivel del piso, revelando únicamente sus marcos superiores. Contraventanas interiores permiten regular la privacidad y el grado de apertura hacia el paisaje.

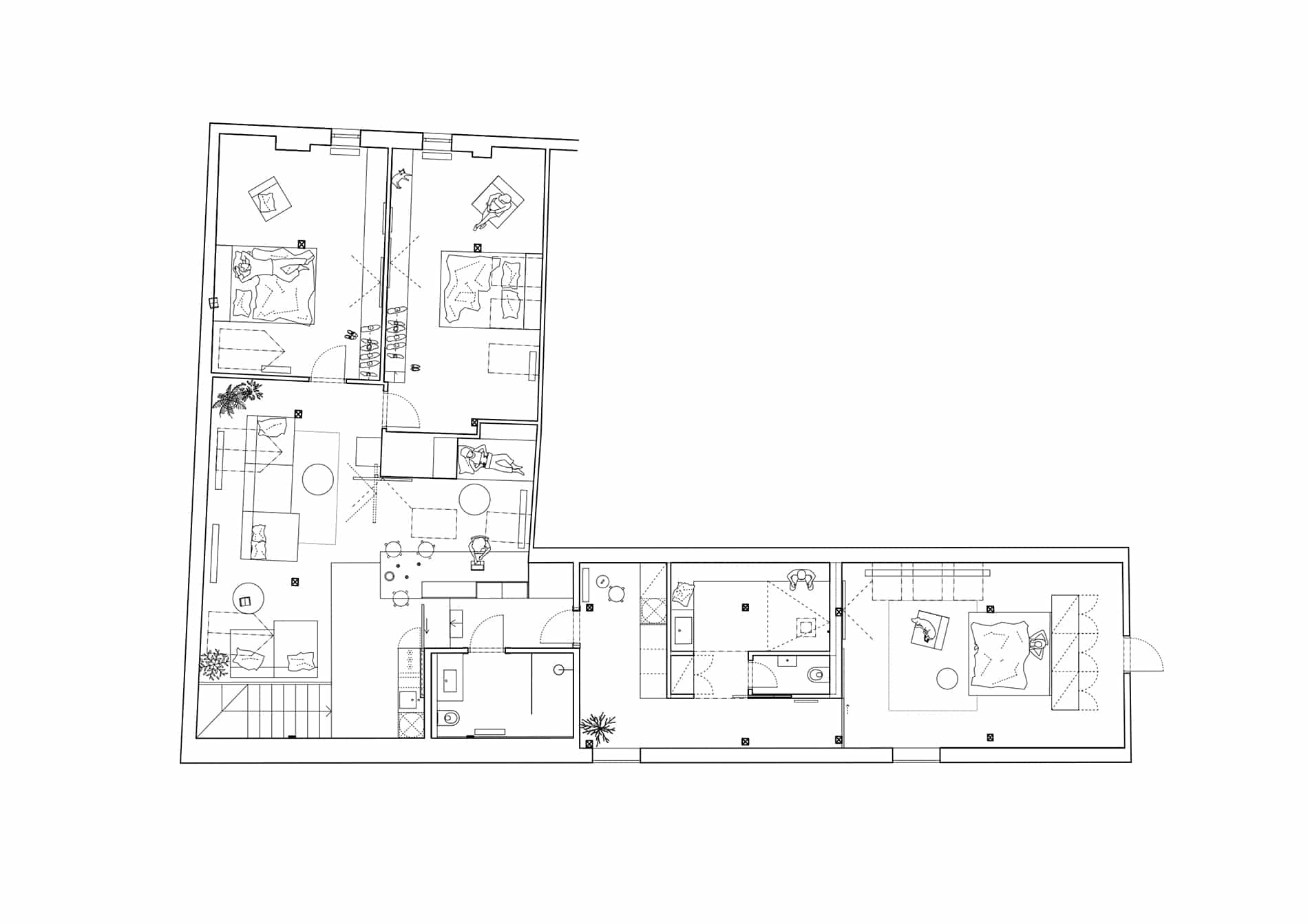
La planta se organiza en dos zonas diferenciadas. El área privada incluye dormitorio y vestidor en tonos oscuros, mientras que las habitaciones para huéspedes adoptan una atmósfera más clara. Ambas se articulan mediante un espacio social central que integra barra, área de estar y zona de trabajo. Junto a la escalera se ubican el baño compartido y un sanitario. El confort térmico se resuelve mediante aire acondicionado en verano y radiadores en invierno, complementados por mejoras en sellos de puertas y ventanas y una partición corrediza que separa ambas plantas.

El material predominante es el granito negro macizo, utilizado en el baño y en la barra que se prolonga hacia la cubierta bajo la pendiente del techo. El muro de piedra original permanece expuesto en el interior, evidenciando la materialidad del conjunto. Detalles como la puerta corrediza de la escalera —cuyo borde sigue la irregularidad del muro— subrayan el trabajo artesanal. En el espacio social, un poste de acero permite suspender un televisor giratorio mediante un sistema diseñado a medida.

La iluminación indirecta —a través de lámparas, luz reflejada y tiras LED integradas— define la atmósfera del interior y permite ajustar la intensidad lumínica según las distintas actividades.

El profundo conocimiento que la familia tiene de la casa fue clave para precisar el alcance de las intervenciones. La renovación no plantea una transformación radical, sino una nueva capa en la evolución del inmueble. Hoy, la planta alta funciona como un refugio doméstico donde la oscuridad, la materialidad y la luz se utilizan como herramientas para construir un ambiente de calma.

PRODUCTOS RELACIONADOS