3 noviembre, 2014
por Arquine
La pasada semana Hashim Sarkis fue nombrado decano de la School of Architecture and Planning del MIT. Un nobramiento que entrará en vigor a partir de Enero. Sarkis es actualmente el profesor de Arquitectura del Paisaje y Urbanismo en las Sociedades Musulmanas en la Escuela de la Universidad de Harvard de Diseño (GSD), donde trabaja como profesor titular desde 2002. Durante los últimos doce años, Sarkis también se ha desempeñado como director del Programa Aga Khan de Arquitectura Islámica en la GSD. El Programa Aga Khan se encuentra en forma conjunta en la Universidad de Harvard y el MIT, y es un programa líder para el estudio de la arquitectura, los problemas urbanos, y la cultura visual en las sociedades islámicas. Ha impartido cursos y estudios de diseño en la arquitectura y el diseño urbano que hacen hincapié en la importancia del diseño en su contexto cultural en una amplia gama de ubicaciones geográficas.
Hashim Sarkis colaboró además en la Revista Arquine No.65 | Espacios de aprendizaje, donde imaginó desde la ficción una nueva organización espacial para el desarrollo de un programa escolar, lo que supone una oportunidad de revisar sus intereses en torno al espacio educativo.

por Hashim Sarkis
Equipo de diseño: Hashim Sarkis y Pablo Roquero con Cynthia Gunadi y Ezra Block
Ubicación: Cosmópolis
Cliente: Revista Arquine
Programa: Preparatoria internacional
Área: 7,000m2
Aulas: 22
De un anillo a mil.
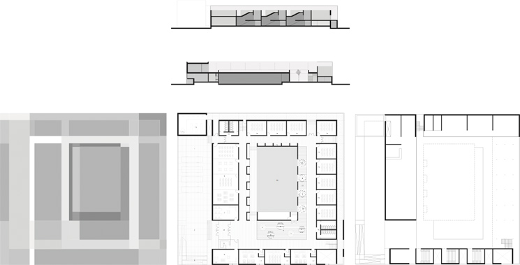
La escuela Milanillos consiste en varios anillos entrelazados de salones, pasillos y espacios exteriores. Al entrelazarse, multiplica sus posibilidades de escalas e interacciones, sin perder la definición de una escuela como entidad. Milanillos se alinea con los programas internacionales de educación, particularmente la valoración de la diversidad entre estudiantes, el agrupamiento de clases especializadas y la diversidad de escalas de instrucción. Sin embargo, el edificio se concibe menos como un instrumento de estas ideas educativas y más como la revisión de las ideas de diseño escolar que se han integrado a la arquitectura de las escuelas por casi un siglo.
En 1926 Richard Neutra propuso un prototipo para la escuela moderna. La escuela del plan anillo, era una unidad organizativa de su hipotética Rush City, y mientras se basa en muchas ideas conductistas sobre el papel de la arquitectura y los ambientes externos en el aprendizaje, desde entonces es un modelo para muchas escuelas que se han apartado de su determinismo ambiental. Incluso cuando el anillo se enderezaba, cortaba o apilaba, el impacto de esa escuela en muchas otras escuelas modernas se puede detectar en las cualidades de la dispersión (sprawl), la porosidad, los elementos anidados unos dentro de otros, y la cualidad que las contiene a todas: la flexibilidad. Estas ideas arquitectónicas persisten en el presente incluso si las ideas sobre la educación han cambiado con cada generación de edificios escolares.
En el 2013, en Arquine, sea en el corazón o en los suburbios de Cosmópolis, regresamos a la escuela en anillo para retar algunas de esas premisas y empujar la forma arquitectónica de las escuelas de la dispersión a lo compacto, de los espacios anidados uno en otro y adyacentes a los espacios entrelazados y de la porosidad a la intensidad. Finalmente, reposicionamos la flexibilidad como adaptación (resilience).
Muchos arquitectos de escuelas discuten los pasillos por su apariencia institucional y al salón de clases por su autonomía. Milanillos propone que estas entidades arquitectónicas pueden ponerse en crisis no al disolverlas sino al recalibrar sus relaciones mutuas.
La escuela Milanillos se concibe como un conjunto de anillos entrelazados de salones, pasillos y espacios sociales que se sobreponen en plano y sección para generar una variedad de escalas y abundancia de cualidades de ambientes educativos sin disolver la integridad de la escuela.De la dispersión a lo compacto
La escuela moderna es dispersa. Asume una localización suburbana, la disposición de un campus, la continuidad entre el adentro y el afuera, y no tiene sección: es horizontal. Le hace falta densidad, conexiones con el entorno y, muchas veces, identidad. Milanillos reúne la escuela para crear un plano compacto en el que los anillos externos son más accesibles para la comunidad. Esta cualidad produce una sección a la escala de la escuela como conjunto y a la escala de los salones de clases. Las intersecciones en sección entre el adentro y el afuera se inscriben en el volumen de la escuela como un skyline que separa entre bandas de concreto entintado y pantallas metálicas. Estos materiales típicos de la preparatoria se abstraen y recombinan para producir una expresión más positiva.
Diagrama del programa. Los entrepisos de los salones crean secciones entrelazadas de salones y espacios exteriores y entre salones y espacios especializados, como bibliotecas y laboratorios.De anidado y adyacente a entrelazado
El diseño de las escuelas modernas busca facilitar la variedada en la instrucción al crear espacios de diferentes tamaños. Ya sean anidados o adyacentes, el orden auditorio, salón de clase, cubículo, le imponen un carácter compartimetado a la arquitectura escolar. Milanillos mantiene su compromiso con las distintas escalas pero las produce entrelazando salones de clase y espacios sociales en una matriz de posibilidades sin abandonar la claridad de la circulación ni de los espacios de instrucción. Aquí, de nuevo, el que se entrelacen en sección salones y espacios auxiliares facilita la posibilidad de que el salón pueda acomodar cambios en los métodos de enseñanza sin cambiar en sí mismo y que el aula y los espacios especializados de bibliotecas y laboratorios estén intersectados.
Dos salones en sección con variaciones del acomodo. Los salones de los niveles bajos mantienen un carácter de aula más fuerte, se dividen en planta en un espacio interface, con el pasillo, un área de techo más bajo para grupos más reducidos, un entrepiso de tamaño variable para actividades que se vinculan con las terrazas exteriores. Los entrepisos del nivel superior están dispuestos de manera linear, para crear una subzona para espacios técnicos o epecializados que puedan usarse para conectar con espacios más amplios.De lo poroso a lo intenso
La escuela con plano de anillo introdujo la idea de que el límite entre el salón de clases y el exterior podría disolverse. Los arquitectos de escuelas modernas también propusieron remover los muros entre salones y entre éstos y los pasillos, generando una planta libre. La arquitectura fue remplazada por la gestión del espacio y el diseño de muebles. Milanillos propone bordes intensos, sobre determinados, pero que radian hacia otros espacios abiertos que ellos delimitan. Las conexiones a los espacios exteriores se mantienen pero se canalizan a través de los anillos entrelazados.
Sección isométrica de la fachada mostrando el uso de pantallas en capas y concreto que definen las fachadas como un skyline inscrito en un edificio escolar formal.De flexible a elástico
Varias generaciones de arquitectos de escuelas han respondido a nuevas ideas sobre la enseñanza proponiendo diseños flexibles. En retrospectiva, parece que los arquitectos han mantenido el lazo determinista entre arquitectura y programa, sin tomar en cuenta la posibilidad de que la arquitectura sea una parte constitutiva de una educación que no determina completamente. A través de cualidades como un diseño compacto, los espacios entrelazados y la intensidad, Milanillos mantiene el impulso de constantemente revisar la arquitectura escolar y formas como el pasillo, el salón de clase y el patio de juegos. Sin embargo, propone que la posibilidad de experimentar reposa más en la adaptación o elasticidad de esos elementos arquitectónicos y no en su flexibilidad y que la arquitectura es un aspecto constitutivo y no sólo instrumental del equipamiento social.